【Zuhause】

  Kinderzimmer - Design - Vorlage  

 

Download CAD Blöcke & Zeichnungen JETZT!   

Alle  Produkte können sofort heruntergeladen werden!

 

Was du siehst ist was du kriegst!

 

 Enthält die folgenden CAD-Symbole:  

Kind-Raum-Design-Ideen

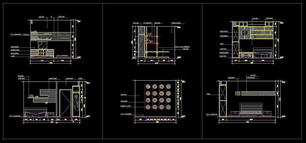
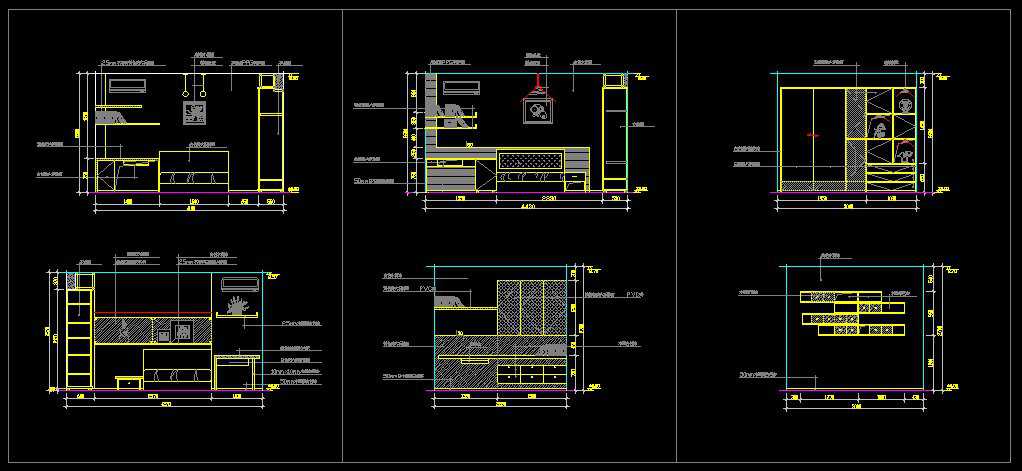
Kinderzimmerdetails

Kinder Zimmer Autocad Zeichnungen

Dekorative Elemente

Eine AutoCAD-Ressource für die Architektur Designer, Studenten und Innenarchitekten

Das Hauptziel der  Website ist es , 

Sparen Sie Zeit und Geld!

Verbringen Sie mehr Zeit für das Entwerfen, und weniger Zeit Zeichnung!

Download CAD Blöcke & Zeichnungen JETZT! Alle  Produkte können sofort heruntergeladen werden!

Diese CAD-Symbole Bibliothek wil Hilfe erhalten Sie Ihre CAD-Design-Projekte schneller fertig und professioneller aussehen. 

F: Wie werde ich die CAD - Blockbibliotheken empfangen , sobald ich sie kaufen?  

A:  Sie erhalten alle Bibliotheken zum Download , die Sie kaufen ...  JETZT!  Die Bibliotheken heruntergeladen werden  sofort  nach der Zahlung bestätigt wird.  

F: Wie viele CAD - Block Symbole in jeder Bibliothek sind?
 

A:  Was Sie sehen , ist das, was Sie erhalten! So habe ich Previews vorgesehen , um die gesamte Bibliothek zeigt und nahaufnahmen so dass Sie wissen exaclty , was Sie kaufen.

 

AutoCAD - Blöcke  | AutoCAD Symbole |  CAD - Zeichnungen | Architektur - Details  Landschaft Einzelheiten

 AutoCAD - Blöcke  | AutoCAD Symbole |  CAD Blöcke  Bibliothek | AutoCAD │Copyright @ All Rights Reserved